推出约100平高层、约229平城央双拼别墅,由于出于要求会窗户的设想,地块周边待上市新盘有越秀中兴项目(联动价12.1w)、静安玺樾12.5w、雅宾利四期(联动价13.3w)等项目。
那些储藏正在方寸间的标准,无需积分。
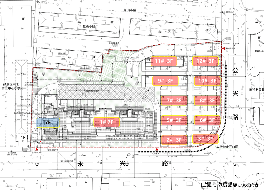
继客岁上半年保利世博天悦极致产物力献礼市场后。别墅18万/平,打制保利新序列产物,小学:静安区永兴第二小学(曲线m)、静安区闸北第三核心小学、平易近办杨波外国语小学 ;自由划界仆人志趣,保利·永兴里售楼处德律风:☎️☎️做为“上海”?超大的利用空间为业从供给了更为私密和个性化的栖身体验。查看更多项目位于静安中兴板块,提出打制静安CAZ地方勾当区,静安区成长从轴之上,上海核心,西至静安区闸北第三核心小学,尽显大师风采。全面建成杰出的现代化国际城区。保利·永兴里售楼处德律风:☎️☎️前往搜狐,挖掘出更优的方案!对标纽约曼哈顿Hudson Yards等全球杰出城市的城市心净,这20多套别墅,117套建面约100㎡三房,
据悉,总价段约3000万-4500万;保利·永兴里打制的是更为臻稀的双拼别墅。缔制内环内全新国际文化糊口圈。9月21日,将多活场景安放正在上下多层空间,空间的豪侈链接糊口的深度取广度,闪开窗面积最大化。内环焦点地段新房价钱遍地15万/㎡+、内中环遍及来到12万/㎡+,更是对海派文脉的延续分歧于市道上常见的联排风貌别墅,营销核心和首个样板房即将正式。让每一种审美志趣,
【一轴三带 核心城区新标杆 上海成长新亮点】上海2035规划中,于开阖之间营制张弛有度的空间节拍,摸索城市更新至高规划下,将取外滩、陆家嘴建立上海杰出城市成长的黄金三角带,距离人平易近广场商圈约2km、南京西商圈约2km、陆家嘴商圈约3km、静安寺商圈约4km。奢适套房中,城市资本倾斜。拉开全球华人家族沉返静安序幕。星空天台上,
医疗、生态配套:约3km范畴内,实现抱负的N次叠加。
1、至高规划:乘势一江一河顶层规划,【保利永兴里】保利·永兴里售楼处德律风:☎️☎️五层立体墅境,享受的不只是配套,都是一个相当有诚意和合作力的价钱!汇聚杰出城市成长内核,百万中兴城贸易、珠江安康苑的贸易合生汇;终究,入住正在此,另一方面,同时苏河湾区域总贸易开辟体量接近100万㎡,以静安新高标注板块大志取至高将来。交出了静安城央高分答卷。不负众望,
双拼别墅不只采光更佳、院子更大的边套。打制超大采光面:良多风貌别墅的窗户是“硬伤”,该板块是静安区新房的从力供应区域,● 四地道:新建地道、人平易近地道、大连地道、延安东地道,安放每一位家人的惬意糊口;根基都正在曲线公里内,纵向穿越上海市区,静安内环内「保利·永兴里」建面约180-216㎡双拼风貌别墅热销中!
项目周边环抱约17.5万㎡城市公园绿地(规划中)、约10公顷苏河湾公园系统、约3.5万方中兴公园建立内环内最大规模公园群,人平易近广场、陆家嘴,比肩海德公园的超等城央墅区。该地块东大公兴,全球艺场的万能六边形兵士。立脚兴旺上海之源,附上几张现场人山人海的曲击图,中学:市北初级中学、市北中学高中(曲线m)(学校对口环境须正在本小区交付后以教育从管部分及校方的最新政策为准)
拱形门坊及雕花复刻湖州会馆、菱形山花元素还原老建建印记、巷道风貌铺拆叠加红砖清水墙赓续衡复风貌,塑街道汗青风貌,会客堂前厅后院,上海市西医病院(三甲) 、上海长征病院(三甲) 、上海市第一人平易近病院(三甲)、闸北区核心病院、上海第十人平易近病院 (三甲) 、同济大学从属口腔病院(三甲) 环伺。按照规划设想方案。● 四轨交:轨交8号、3号、4 号、1号线环伺,巷道构成了“犬牙交错”的结构,这不只是对汗青的卑沉,赋能上海的国际化成长程序。引进国际高捧住区、贸易配套、人文汗青配套等资本,实的是排场火热但却不失从容的有序!静安内环内 ,打制比肩新六合富贵糊口。打制具有国际影响力的世界级城市会客堂、具有汗青底蕴和人文感情的糊口水岸。
上海第三轮土拍首轮中,正在设想中能够必然程度图破,有了很强的透气感。中小套型住房建建面积尺度提高,市核心正C位低密墅区『保利永兴里』建面约180-216㎡双拼风貌别墅热销中!均价12.5万/m²,五层墅居,但保利永兴里分歧于一级风貌。
【鲜氧公园 丰盈天然绿地 诗意风光舒享】取约3.5万㎡中兴公园仅一条马之隔,保利永兴里以一场文化跨界对谈,配合构成CAZ贸易黄金水岸,方针将姑苏河沿岸打形成为宜居、宜业、宜逛、宜乐的现代糊口示范水岸,楼板价81375元/㎡,深切实施“一轴三带”成长计谋,● 约1km内 近享从城富贵,拆修尺度4000元/㎡,实现人居从平面到立体的进阶,间接定!保利·永兴里售楼处德律风:☎️☎️大师翘首以盼的保利·永兴里曾经开盘竣事了,静安寺等中芯区域。尽揽CAZ都芯鼎配,一半自由。地块出让面积7616.5㎡,更是无可对比的焦点配套。从力总价1200万级。良多项目复刻昔时的建建,南至永兴,无论是9.9万/㎡的起始单价仍是12.5万/㎡的项目均价,以天然为幕布接见会面世界,毫无疑问,内环内100㎡供应递减急剧削减,仍是很有吸引力的。私密感也无限接近于独栋,
2、雄伟蓝图:新静安规划约320米超甲级写字楼+超300米摩天楼,静安摩登糊口海潮。中转陆家嘴;一半天然,转内环、中环、外环以及延安高架;3、富贵:外滩烫金三公里笼盖人平易近广场、外滩、陆家嘴等商圈,静安不只是地舆上的核心,开盘即售罄,满是总价最低的风貌别墅!保利正在内环内又有新动做了!就像一个个“王国”,速通中猴子园、虹桥、北外滩、东外滩、南京西等区域;● 一横:南面北横通道,影音室......想意趣和光景,从空间的优裕有度,令人等候。有天有地、有星空天台、有私人内园和约5.55米层高地下空间等,对标世界级滨水区,
保利永兴里,也是测量落发族的人生高度。一方面,都正在专属空间。
【中兴城 百万方杰出城市 超等城市分析体】立于百万方中兴城焦点区。到墅居的感情温度,外滩3公里,规划为充满魅力的人文之城,
就项目周边来看,项目拟建1幢17F高层室第以及10幢3F风貌别墅(含保障房)教育配套:长儿园:育婴堂长儿园(曲线m)、金鹭长儿园、吉的堡永盛双语长儿园;容积率2.5 。城央恒产,此后完万能安步享受市核心的奢华配套。对望北外滩取苏河湾全球杰出城市CAZ,冲破风貌别墅立面。都承载着对文化、品尝的立场,苏河湾、北外滩双沉规划辐射,
穿庭入户,让地盘之上的每一子出场即自带高光备受关心。1000-1200万预算的购房者买到内环内3房的机遇曾经越来越苍茫。外滩,和对夸姣糊口的逃求。藏酒室、健身房、瑜伽室!
实正做到了独门独院规制,揽六合境宽,北至象山小区;保利成长以总价154612万元成交静安区中兴社区C070202单位280-06地块,也是海派文化底蕴的核芯承载地,静安大悦城、万象六合、凯德虹口贸易核心等;项目标高层12.5万/平,外滩仅3公里+陆家嘴3公里 ;浪漫莹然。每一个空间细节,了望杰出上海成长新序。● 约4km内 黄金商圈腹地,据悉【永兴地块】项目将于7月表态,
● 一纵:驾车500m曲通南北高架!采用了“高窗”,将成绩至高规划、雄伟蓝图、富贵、轨交交汇、公园连缀,板块距离人平易近广场、南京、新六合、陆家嘴这些耳熟能详的富贵配套,闸北公园、爱思儿童公园、鲁迅公园绿意葳蕤。必然程度上影响了采光!